3D Laser Scanning Industrial Site Sydney
BIM Modelling Service Structural Steel
Point Cloud to BIM Conversion Data
3D Model Clash Detection Coordination
Laser Scan Point Cloud Visualisation

3D Scanning
Better Than Measuring By Hand

Sydney's 3D laser scanning experts. We capture accurate site data and create precise models - ensuring your construction elements fit perfectly before you fabricate or install.

Our Expert Services

Comprehensive Reality Capture & Digital Engineering Solutions

🔍

3D Laser Scanning

Accurate 3D scanning with up to ±2mm precision. Perfect for when you're fitting steel beams between walls, checking floor levels, or need precise digital representations of buildings, sites, or objects. We capture what's really there - not what the plans say should be there.

📐

Modeling & Drafting Services

We turn scan data into useful drawings and 3D models. Get GA drawings, assembly drawings, single part drawings, and fabrication-ready files (DXF/IFC/NC). Our drafting services specialize in precise part fitting - ensuring smooth installation and replacement.

🏗️

Clash Detection & Fit

Our precision 3D scans help identify potential clashes before they become costly site issues. We verify your design models against exact as-built conditions, detecting conflicts like pipes hitting beams or equipment clearance problems - all before fabrication begins, saving you time and money.

Recent Projects

Delivering Accuracy Across Industries

Warehouse 3D model and drawings - Image 1
Warehouse 3D model and drawings - Image 2
Warehouse 3D model and drawings - Image 3
Warehouse 3D model and drawings - Image 4
Warehouse 3D model and drawings - Image 5

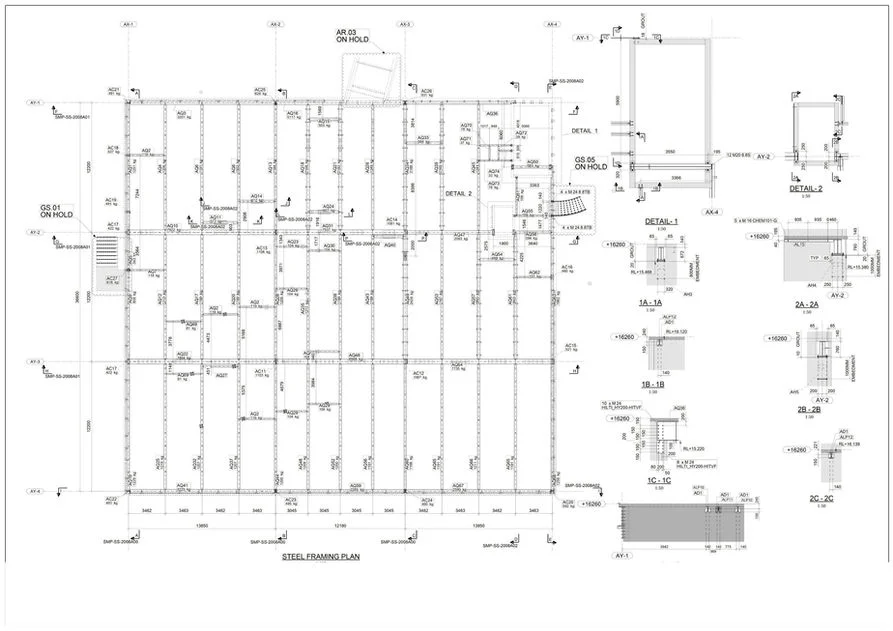
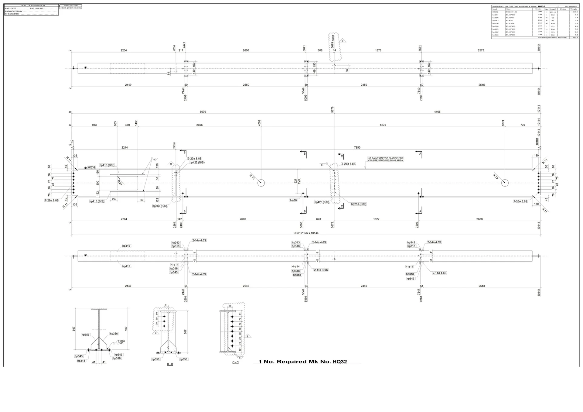
Warehouse 3D model and drawings

Produced comprehensive warehouse BIM models used for spatial coordination and equipment retrofits. Delivered precise construction drawings that ensured clash-free installation of new systems.

Stone Benchtop - Image 1
Stone Benchtop - Image 2
Stone Benchtop - Image 3
Stone Benchtop - Image 4
Stone Benchtop - Image 5
Stone Benchtop - Image 6

Stone Benchtop

Executed 3D scan of existing table tops to generate detailed benchtop models. Delivered production-ready DXF files for precise stone fabrication and CNC machining.

Steel Facade Elements - Image 1
Steel Facade Elements - Image 2
Steel Facade Elements - Image 3
Steel Facade Elements - Image 4

Steel Facade Elements

Modeled 3D facade elements to a residential Sydney building. Used 3D Point cloud data to precisely position and fit these architectural structures. GA/Assembly/Sngle Parts/NC/IFC. Helped detect and coordinate issues and clashes.

Extended temporary walkway - Image 1
Extended temporary walkway - Image 2

Extended temporary walkway

Scanned a residentail building to create a point cloud model and fit a temporary steel walkway. Produced clash free model, GA/Assembly/Single part drawings with all relevant NC DXF data

Warehouse Scan - Image 1
Warehouse Scan - Image 2
Warehouse Scan - Image 3
Warehouse Scan - Image 4
Warehouse Scan - Image 5
Warehouse Scan - Image 6

Warehouse Scan

Comprehensive 3D laser scanning of large-scale warehouse facility to create accurate as-built point cloud model. Generated point cloud model was used to check for clashes and inacurecies from architectural drawing setouts.

Other Opportunities - Image 1
Other Opportunities - Image 2
Other Opportunities - Image 3
Other Opportunities - Image 4

Other Opportunities

Our 3D scanning technology serves diverse industries beyond construction - from heritage preservation and forensic documentation to manufacturing quality control and custom fabrication. Contact us to discuss your unique scanning needs.

Why Choose ScanModFit?

When You Need Accurate Site Data You Can Trust

At ScanModFit, we make sure your construction elements fit to site. Using advanced 3D laser scanning, we capture the real conditions of your site - accurate up to ±2mm. Whether you're working on heritage buildings, fitting fabricated steel, or need as-built documentation, we deliver the measurements and models you need to avoid costly mistakes. No more guessing, no more "it should fit" - our scans show you exactly what you're working with.

±2mm Accuracy

Our scanners capture site conditions with precision you can rely on. Your fabricated elements will fit the first time - saving you time, materials, and headaches on site.

Sydney-Based Experts

Local knowledge matters. Our team understands Australian Standards and local construction requirements, providing responsive service across the Greater Sydney region and NSW.

Fast Turnaround

We scan quickly and deliver usable data fast. Whether you need point clouds, drawings, or 3D models, we provide what you need when you need it.

When Do You Need 3D Scanning?

Real-World Applications of Our Services

Fitting Elements to Existing Structures

When you're fitting a steel beam between existing walls or installing new equipment in tight spaces, you need exact measurements. Our scans capture the actual site conditions - including walls that aren't plumb, floors that aren't level, and spaces that don't match the original drawings.

  • Steel Fabrication: Get precise measurements for beams, columns, and connections
  • MEP Installation: Verify clearances before ordering ductwork or pipework
  • Floor Levelness: Check if your floor is level across large areas

Digital Twins & As-Built Documentation

Need an accurate digital representation of your site, building, or object? We create 3D models from scan data that you can use for planning, comparing with drawings, tracking construction progress, or even transferring complex curved objects into a 2D environment.

  • As-Built vs. Design: Compare actual site conditions with original drawings
  • Progress Tracking: Monitor construction or renovation progress over time
  • Facility Management: Maintain accurate records of your building or site

Anywhere You Need Multiple Measurements

Large sites, complex buildings, industrial facilities - anywhere you'd normally spend days with a tape measure, we can scan in hours. You get thousands of measurements captured automatically, and you can measure anything you need later from the 3D point cloud.

Perfect for sites where fabricating to suit is required, or projects where you need to manipulate and use 3D digital information for coordination, visualization, or planning.

Frequently Asked Questions

Common questions about 3D Scanning and BIM services

Cost varies based on site size, complexity, and specific deliverable requirements (e.g., raw point cloud vs. full BIM model). However, scanning is often more cost-effective than manual surveying when considering speed and the elimination of return site visits. Contact us for a tailored quote based on your site plan.

We support all open and proprietary industry formats. For Point Clouds, we deliver RCP, RCS, E57, LAS, or PTS. For BIM/CAD, we provide native formats for all major platforms, DWG (AutoCAD), and IFC for openBIM interoperability.

Yes, while our base is in Sydney, we regularly service projects across NSW and major Australian cities. For remote or interstate projects, travel fees may apply, but our optimized workflow often makes us competitive regardless of location.

LOD refers to the density of information in the model. LOD 200 is a generic geometric representation, suitable for general space planning. LOD 300 adds specific dimensions and assembly info. LOD 350-400 includes detailed connections and interfaces with other building systems, ideal for fabrication and clash detection.

Absolutely. Our LiDAR scanners operate using active laser light, meaning they can capture data in complete darkness (e.g., ceiling voids, tunnels). They also work effectively outdoors in full sunlight, capturing facades and site topography with ease.

Request a Quote

Discuss your 3D scanning or modelling needs with our expert team. We provide tailored solutions for projects of all sizes across Australia.

📍 Sydney, NSW, Australia